53
$625,000 Sale
Listed 3 hours ago
93 LILAC BA
· 3
· 2.5
· 0
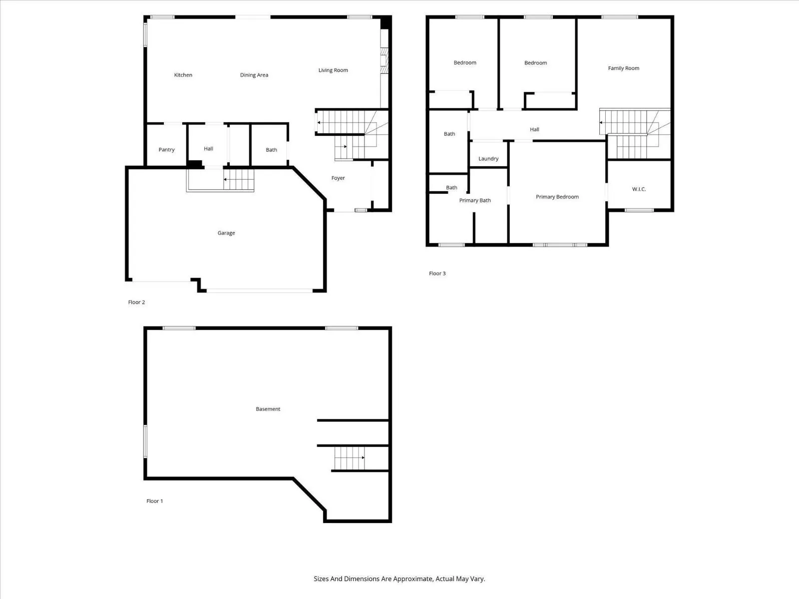
· 2053
Key Facts
Key facts for 93 LILAC BA
Property Type
House, House
Parking
Garage: Yes, 0 parking
MLS #
E4462159
Size
2053 sqft
Basement
Unfinished, Full (Unfinished)
Listed on
-
Lot size
-
Tax
-
Days on Market
-
Year Built
2021
Maintenance Fee
-
Description
Welcome to this stunning 2,052 sq ft two-storey home in the sought-after community of Stoneshire, Spruce Grove! Built in 2021, this modern home combines style, comfort, and functionality in every detail. The main floor offers an open concept layout with a bright living area and a gorgeous kitchen fe...aturing quartz countertops, stainless steel appliances, and a large island that’s perfect for gathering. Upstairs, you’ll find three spacious bedrooms, a bonus room, and a convenient laundry area. The primary suite is a true retreat, complete with a 5 piece spa-like ensuite showcasing a tiled shower, relaxing soaker tub, and a walk-in closet. With 2.5 bathrooms total, there’s plenty of space for the whole family. Additional features include air conditioning, quartz throughout, and a triple attached garage. Step outside to a fully fenced yard with a private hot tub area on the deck, creating the perfect spot to unwind. Located on a quiet bay in Stoneshire, close to parks, schools, golf, and shopping! (id:10452)
Similar Properties (No results)
Room Types
Bedroom 2
-
Dimensions 4.06 m x 3 m
131.1 sqft
Bedroom 3
-
Dimensions 4.06 m x 3.08 m
134.6 sqft
Bonus Room
-
Dimensions 4.04 m x 4.25 m
184.82 sqft
Listing courtesy of: RE/MAX PREFERRED CHOICE
This REALTOR.ca listing content is owned and licensed by REALTOR® members of The Canadian Real Estate Association.